" Are you living in the Past, or the Future? "
Earth Sheltered Homes,Underground Homes,Financing,Sales,
Construction,Consulting.
Our Structures can save up to 90% on Your Energy Cost.

Welcome to  Earthlog ® Equity Group, Inc.

Our Earth Sheltered Homes, Berm Homes & Underground Homes and
Commercial Structures can save you up to 90% on Your Energy cost.

With the Client acting as or Hiring a General Contractor We Offer :

* Custom Design Services & Blue Prints
* Consulting
* Sales of Earth Sheltered Shells
* Construction of Earth Sheltered Shells
* Dealerships
* Bullet Proof Windows & Glass as an Option
* Can be EMP Protected as an Option
* Proprietary ingredient blended with Concrete,
Makes Concrete Stronger than Concrete normally is available in all Our Homes.

Available Nationwide here in the US, Bahamas, Costa Rica, Canada & Australia.
                    
*   all home plans can be reversed  *
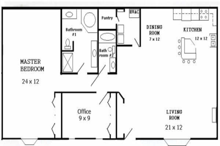
HOLIDAY PLANS  1,315 Square Feet
Planned as 2 -26 foot Mods but can be done as 2  - 30 foot
Mods  = 1,775 sq ft Sqare Feet
Contact Us Today
via email for Your
Free Price Quote
Earthlog  ® Equity Group, Inc.
All Rights Reserved and Registered  by
Earthlog ® Equity Group, Inc. 1989 - 201
7